Energiparken Rendbæk/Toftegaardsvej -Jammerbugt Go Green - Industriklyngen og solcelleparken
Danmarks Naturfredningsforenings Jammerbugt-afdeling er meget bekymret over planerne om et kæmpemæssigt energianlæg i Rendbæk, bestående af landets største solcellepark, vindmøller og et PTX-anlæg, der også inkluderer et biogasanlæg.Vi har derfor indsendt 2 høringssvar til henholdsvis lokalplansforslaget til solcelleparken og til lokalplansforslaget til industriklyngen.
September 2025.
Jammerbugt Kommune har sendt et lokalplanforslag og kommuneplantillæg i offentlig høring vedr. etablering af en energipark beliggende Rendbæk Øst/Toftegårdsvej, i Store Vildmose.
Projektet som også kaldes Jammerbugt Go Green indebærer en industriklynge med biogasanlæg og PowertooX-anlæg (muligvis) samt Danmarks største solcellepark på næsten 800 hektar.
Danmarks Naturfredningsforening har gennemlæst de mange dokumenter og på baggrund af viden og oplysninger i baggrundsmaterialet omkring lokalplansforslaget, har vi indsendt 2 høringssvar - et som målrettes industriklyngen og et høringssvar målrettes solcelleparken - se disse link: høringssvar industriklyngen og høringssvar solcelleparken
Danmarks Naturfredningsforening arbejder for en ambitiøs klimapolitik og for at give naturen meget mere plads. Udbygningen af vedvarende energi er vigtig, og dette hensyn skal nøje afvejes med hensyn til meget mere natur, dyreliv og biodiversitet, som er blandt DNs største mærkesager. Udbygningen af grøn, vedvarende energi er også en DNs mærkesager. Den vedvarende energi (VE) skal være multifunktionel, velplaceret og vel indplaceret i landskabet og afbalanceret i forholdet mellem mennesker, dyreliv, biodiversitet og natur.
Overordnet hilser Danmarks Naturfredningsforening forslaget om mere vedvarende energi velkomment. Dette forslag er dog ud fra en helhedsbetragtning grundet sin størrelse, placering samt graverende overskridelser af natur- og miljømæssige beskyttelseslinjer og restriktioner uacceptabelt, som det foreligger.
Store Vildmose er Danmarks største lavbundsområde med kulstofrige landbrugsjorder, som i vidt omfang fortsat dyrkes. På baggrund af Den Grønne Trepart og de seneste jordopkøb i Store Vildmose foretaget af Miljøministeriet, er udtagning af landbrugsjord i Store Vildmose højt politisk prioriteret. Både for at skabe naturgenopretning, stor sammenhængende natur, reducere kvælstofudvaskning til Limfjorden og undgå CO2-udslip fra dyrkning af drænet mosejord.
Lokalplansforslaget og kommuneplantillægget for projektet Jammerbugt Go Green og den udpegede energipark vil i en lang fremtid forhindre etablering af sammenhængende natur fra Store Vildmose til naturområderne langs Jammerbugtens nordsøkyst. Derudover vil energiparken stå i vejen for genopretning af naturlig hydrologi i Store Vildmose, og de industrielle anlæg kan have mange andre afledte effekter på de naturgenoprettede arealer, fx på grund af trafik.
På den baggrund fraråder Danmarks Naturfredningsforening, at lokalplansforslaget og kommuneplantillægget godkendes i den skitserede form.
Danmarks Naturfredningsforenings alternative løsningsforslag:
For at sikre en udbygning af vedvarende energi vil DN Jammerbugt pege på en alternativ og helhedsorienteret løsning, tilpasset omgivelser, dyreliv, natur og biodiversitet.
Den alternative udførelse omfatter ca. en halvering af forslaget til projektområdet.
I projektansøgningen fra 2020 blev der estimeret et produktionsbehov på 1.000 MWh årligt. Med 400 ha solceller og de allerede godkendte 15 vindmøller bliver det muligt på opførelsestidspunktet at opnå mindst dette produktionsmål. Produktionsbehovet er således dækket, men takket den teknologiske udvikling kan det ske på et væsentligt mindre areal.
Det er DN Jammerbugts opfattelse, at alternativet sikrer en langt bedre balance mellem grøn omstilling, mennesker, dyreliv, biodiversitet og meget mere natur.
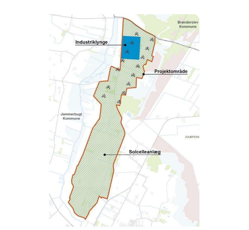
Kort herunder, som viser Danmarks Naturfredningsforenings alternative forslag til lokalplansforslag og kommuneplantillæg for Energipark Rendbæk Øst/Toftegårdsvej - Jammerbugt Go Green.
Biologisk mangfoldighed.
Der er ingen tvivl om, at hvis projektet opføres i sin helhed, vil det være voldsomt fortrængende for mange vintertrækfugle, som fouragerende gæs og svaner – herunder arter udpeget på Fuglebekyttelsesområde F1 i Natura-2000 området Nibe Bredning (Ulvedybet). Arter som ses indenfor projektområdet hvert eneste år i stort tal er: sangsvane, grågås, bramgås og kortnæbbet gås samt i mindre antal – knopsvane og pibesvane. Der er i perioden 2023-24 registreret omkring 10.000 Kortnæbbede gæs, 6000 Sangsvaner, 1350 Canadagæs, 600 Blisgæs, plus ynglende vibe, løvsanger og gulspurv og trækkende Bjerglærker. Vibe, løvsanger og gulspurv er rødlistede som sårbare (VU).
For stadig at give plads til de mange vintertrækfugle, giver det rigtig god mening, at projektforslaget indskrænkes til en solcellepark på 400 hektar, efter DN´s overbevisning.
Det resterende areal som var disponibelt til energiparken – i alt. ca. 365 hektar kunne der her gennemføres et klima lavbundsprojekt, med genopretning af ådalen, på denne strækning langs med Ryå.
Genopretningen til ny natur, vil også bringe Ryå og naturarealer i Store Vildmose bedre sammen, som en grøn korridor, hvor ikke blot vintertrækfugle ville kunne fouragere, men området kunne også blive nyt levested og yngleplads til et væld af forskellige vadefugle. Og den rødlistede odder som allerede er eksisterende indenfor projektområdet, ville kunne få endnu bedre muligheder for en positiv og stabil fremgang for arten.
Det vil kunne lykkedes at nå i mål med finansiering gennem Grøn Trepart eller lignende muligheder evt. salg af arealet til en Naturfond.
Vi foreslår derfor, at den nordlige del af projektområdet fastholdes, og den sydlige del reduceres til et naturgenopretningsprojekt med genskabelse af ådal/fersk eng ned mod Ryå.
Afsluttende kommentar:
Det er Danmarks Naturfredningsforening Jammerbugt afdelings opfattelse, at evt. realisering af industriklyngen vil medføre store farer for den omkringliggende natur og miljøet.
Udledning af spildevand ved evt. læk fra biogasanlægget vil være katastrofalt for Ryå – hvor strømmer vandet hen ved en læk? Luftbåret ammoniaktilførsel fra biogasanlægget vil uden tvivl blæse vest nord/vest og nedfældes i højmosen, som er den mest kvælstoffølsomme naturtype i Danmark - en naturtype som Danmark er forpligtet gennem EU at passe på. Der gøres mange anstrengelser for at sikre højmosen en gunstig bevaringsstatus i Natura-2000 planen for Store Vildmose. Habitatområdet ligger helt op til industriklyngen i Jammerbugt Go Green Energiø.
På baggrund af den store usikkerhed om hvilke energiformer der skal produceres og især på baggrund af industriklyngens beliggenhed, vil Danmarks Naturfredningsforening anbefale kommunalbestyrelsen i Jammerbugt Kommune, helt at afvise projektet med industriklyngen.
Derfor vil DN Jammerbugt anbefale Jammerbugt Kommune at sige nej til industriklyngen, men ja til en reduceret solcellepark med tilhørende vindmøller.
På vegne af Danmarks Naturfredningsforening, Jammerbugt afdeling
Søren Rosenberg, formand.